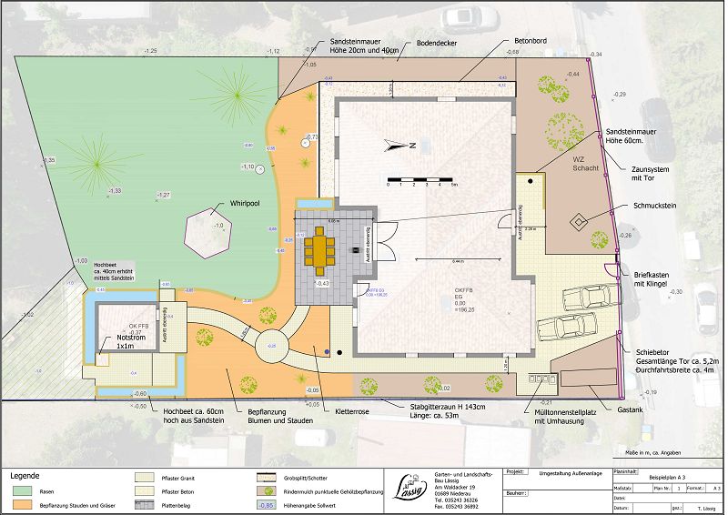
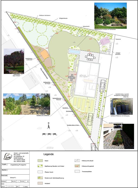
Ohne Planung – kein Erfolg.
Eine intelligente und den Bedürfnissen gerechte Planung ist mindestens genauso wichtig wie die technisch einwandfreie Ausführung! Beides können wir Ihnen als erfahrener Fachbetrieb mit langjähriger Erfahrung und qualifiziertem Personal bieten.
Um genau auf die Bedürfnisse unserer Kunden eingehen zu können, empfehlen wir ein Treffen vor Ort. Hier werden Wünsche und Ideen ausgetauscht und die Möglichkeiten der Realisierung besprochen. Diese werden in einem Vorentwurf festgehalten und bilden die Grundlage für ein Preisangebot.
